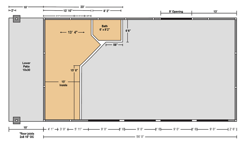
30x56 Menards Pole Barn with deck